Bản vẽ thiết kế nhà 2 tầng 7x10m đang là lựa chọn tối ưu cho gia đình muốn một ngôi nhà gọn gàng, đủ tiện nghi và đầu tư hợp lý. Với diện tích 70m² mỗi sàn, mô hình này tối ưu công năng, phân tách sinh hoạt chung – riêng tư rõ ràng và dễ mở rộng về sau. Bài viết tổng hợp ưu điểm, bản vẽ mặt bằng, chi phí xây dựng, lưu ý thiết kế và gợi ý mẫu để bạn nhanh chóng tìm được phương án ưng ý.
Nội dung chính
- 1 Giới thiệu tổng quan về nhà 2 tầng 7x10m
- 2 Ưu điểm vượt trội của mẫu nhà 2 tầng 7x10m
- 3 Bản vẽ thiết kế nhà 2 tầng 7x10m chi tiết, dễ hiểu
- 4 Tổng hợp các mẫu nhà 2 tầng 7x10m đẹp, đủ công năng
- 5 Cách tính chi phí xây dựng trọn gói nhà 2 tầng 7x10m
- 6 Lưu ý quan trọng khi thiết kế nhà 2 tầng 7x10m
- 7 Tham khảo gợi ý mặt bằng công năng tiêu biểu
- 8 Lựa chọn phong cách phù hợp diện tích 7x10m
- 9 Tối ưu kỹ thuật để thi công “đúng như phối cảnh”
- 10 Câu hỏi FAQ thường gặp
Giới thiệu tổng quan về nhà 2 tầng 7x10m
Nhà 2 tầng 7x10m phù hợp lô đất phố nhỏ hoặc đất vùng quê cần tiết kiệm chi phí. Bản vẽ thiết kế nhà 2 tầng 7x10m cho phép tổ chức không gian khoa học, giảm hành lang thừa và nâng hiệu suất sử dụng.
Với diện tích 70m²/sàn, gia đình 3–5 người vẫn có đủ phòng khách, bếp – ăn, 3–4 phòng ngủ và các không gian tiện ích. Bản vẽ nhà 2 tầng 7x10m còn chủ động bài toán ánh sáng – thông gió bằng giếng trời và cửa kính.

Ưu điểm vượt trội của mẫu nhà 2 tầng 7x10m
- Tối ưu diện tích và ngân sách: Mặt bằng vuông vức giúp kết cấu đơn giản, giảm vật liệu – nhân công, nên bản vẽ thiết kế nhà 2 tầng 7x10m thường cho chi phí/ m² dễ kiểm soát.
- Linh hoạt phong cách: Từ hiện đại, tối giản đến tân cổ điển đều có thể triển khai trên khung kích thước này. Mẫu thiết kế nhà 7x10m ứng biến tốt với mái bằng, mái lệch hay mái Thái.
- Phù hợp nhiều địa hình: Hẻm đô thị, mặt tiền nhỏ hay lô đất ở quê đều bố trí được gara, sân trước – sau. Mẫu nhà 2 tầng 7x10m tận dụng tối đa không gian bằng kết hợp mở: khách – bếp – ăn.
- Dễ nâng cấp: Khi cần, có thể thêm tum, sân thượng hoặc mở rộng phòng ngủ mà không phá vỡ tổng thể. Đây là lợi thế bền vững của bản vẽ nhà 2 tầng 7x10m.
- Giá trị thẩm mỹ cao: Tỷ lệ hình khối 7x10m cân đối, dễ tạo mặt tiền sang và tinh gọn.
Bản vẽ thiết kế nhà 2 tầng 7x10m chi tiết, dễ hiểu
Phối cảnh ngoại thất trình bày đường nét, khối tích, vật liệu và giải pháp lấy sáng. Với bản vẽ thiết kế nhà 2 tầng 7x10m, mặt tiền nên nhấn một trục dọc, lam che nắng hoặc ban công kính để tạo chiều sâu thị giác.
Mặt bằng tầng 1: Phòng khách đặt phía trước, liên kết bếp – ăn tạo không gian mở thoáng sáng. Thường bố trí 1 phòng ngủ cho ông bà/khách và 1 vệ sinh chung kín gió ở cuối tầng. Bản vẽ thiết kế nhà 2 tầng 7x10m khuyến nghị cửa sổ mở về khoảng trống giếng trời.
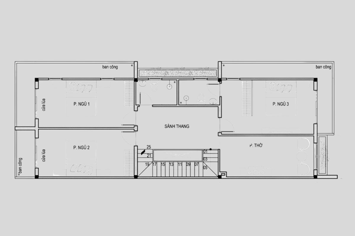
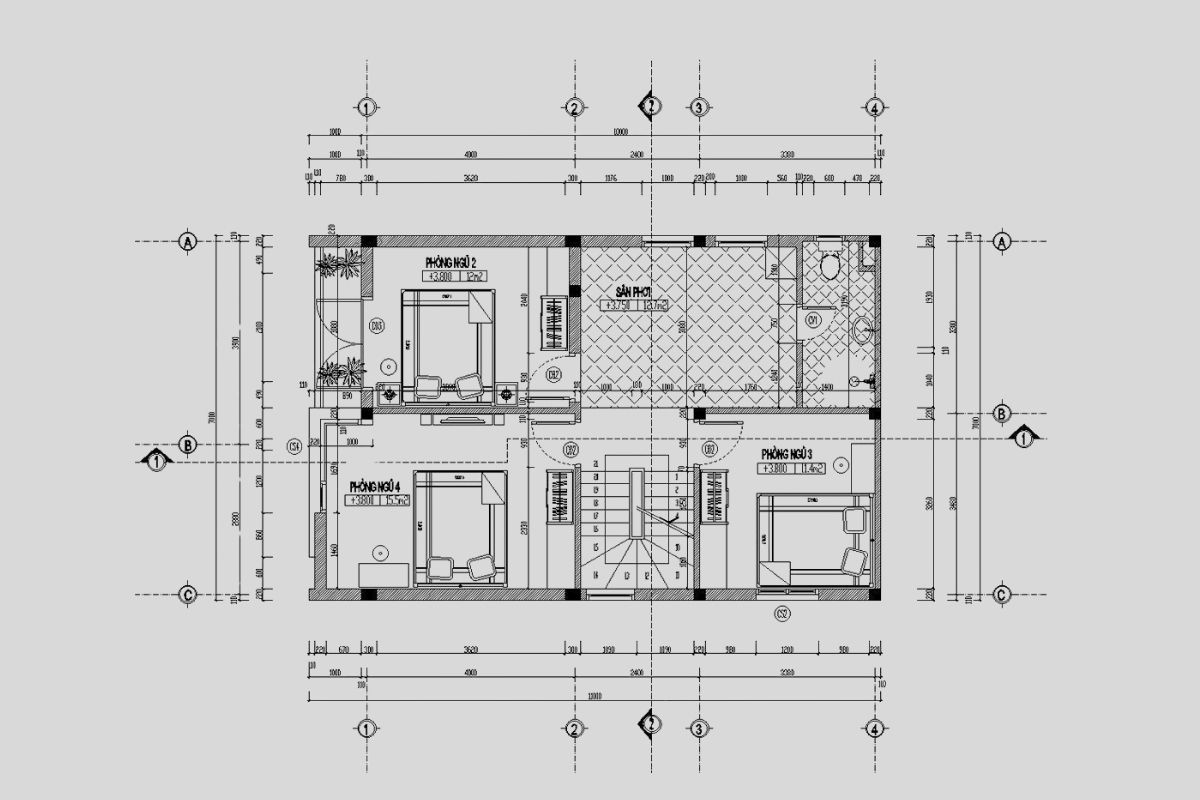
Mặt bằng tầng 2: 2–3 phòng ngủ tùy nhu cầu; phòng ngủ chính có ban công/ô cửa lớn. Bố trí thêm phòng thờ, khu giặt phơi và 1 vệ sinh chung. Trong bản vẽ nhà 2 tầng 7x10m, cầu thang nên ở vị trí giữa để chia luồng giao thông tự nhiên.

Tổng hợp các mẫu nhà 2 tầng 7x10m đẹp, đủ công năng
Mẫu hiện đại: Mảng khối vuông vắn, kính – thép – bê tông kết hợp. Bản vẽ thiết kế nhà 2 tầng 7x10m phong cách này tạo mặt tiền phẳng, ít chi tiết, duy trì vẻ thanh lịch theo thời gian.
Mẫu mái bằng: Tối giản, trẻ trung, tông trắng – ghi, có sân thượng làm vườn nhỏ. Mẫu thiết kế nhà 7x10m mái bằng dễ lắp pin năng lượng và che nắng linh hoạt.
Mẫu mái Thái/mái chữ A: Vẻ cao ráo, chống nóng – thoát nước tốt. Với bản vẽ nhà 2 tầng 7x10m, mái Thái giúp nhà cân đối và gần gũi khí hậu Việt Nam.
Mẫu mái lệch: Cá tính, tạo trần cao thoáng và thoát nước hiệu quả. Mặt tiền nổi bật nhờ đường mái dứt khoát.
Mẫu 3 phòng ngủ: Lý tưởng cho gia đình 3–5 người. Mẫu nhà 2 tầng 7x10m này tập trung vào phòng ngủ master rộng, hai phòng còn lại gọn gàng, đủ sáng.
Mẫu 4 phòng ngủ: Phù hợp gia đình đông người, thường kết hợp mái bằng để có sân thượng. Bản vẽ nhà 2 tầng 7x10m cần tối ưu tủ âm tường và lưu trữ.
Mẫu có gara ô tô: Tầng trệt dành chỗ đậu xe gọn, vẫn thoáng lối vào. Bản vẽ thiết kế nhà 2 tầng 7x10m sắp xếp ram dốc hợp chuẩn.
Mẫu có sân thượng/sân vườn: Tạo không gian thư giãn, trồng cây, tổ chức tiệc nhỏ. Đây là “lá phổi xanh” trong mẫu thiết kế nhà 7x10m.
Cách tính chi phí xây dựng trọn gói nhà 2 tầng 7x10m
Công thức cơ bản:
Tổng chi phí = Tổng diện tích sàn × Đơn giá xây dựng/m².
Trong bản vẽ thiết kế nhà 2 tầng 7x10m, diện tích tính gồm móng (hệ số), tầng trệt, tầng lầu và mái.
Đơn giá trọn gói tham khảo: 5.000.000 – 6.000.000 VNĐ/m² với vật liệu phổ thông, thi công tiêu chuẩn.
Ví dụ minh họa (mái bằng): Tổng diện tích khoảng 161m² (tùy hệ số mái – ban công). Chi phí ước ~966.000.000 VNĐ ở mức 6.000.000 VNĐ/m². Con số thực tế phụ thuộc khu vực, vật liệu, độ phức tạp và thời điểm. Bản vẽ nhà 2 tầng 7x10m càng chi tiết, dự toán càng sát.
Lưu ý quan trọng khi thiết kế nhà 2 tầng 7x10m
Phong thủy và tỷ lệ: Tránh khuyết góc lớn; bếp bố trí “tọa hung hướng cát”; giường ngủ đặt tựa tường vững. Bản vẽ thiết kế nhà 2 tầng 7x10m nên xác lập trục tâm – trục sáng ngay từ đầu.
Ánh sáng – thông gió: Cửa sổ lớn, giếng trời và vách kính giúp tiết kiệm điện, tăng sức khỏe. Mẫu nhà 2 tầng 7x10m ứng dụng lam che nắng để giảm bức xạ.
Vật liệu: Ưu tiên gạch block, sàn bê tông nhẹ, cửa nhôm kính cách âm – cách nhiệt hợp lý. Mẫu thiết kế nhà 7x10m chọn tông trung tính để không gian rộng thị giác.
Cầu thang – công năng: Tránh cầu thang chiếm diện tích quá lớn. Trong bản vẽ nhà 2 tầng 7x10m, mặt bậc 250–260 mm, chiều cao bậc 160–170 mm cho nhịp bước êm.

Tham khảo gợi ý mặt bằng công năng tiêu biểu
Phương án A – 3 phòng ngủ
Tầng 1: Phòng khách 20–24m²; bếp – ăn 16–20m²; 1 phòng ngủ 10–12m²; 1 WC. Bản vẽ thiết kế nhà 2 tầng 7x10m đặt giếng trời cạnh cầu thang để phân phối sáng.
Tầng 2: 2 phòng ngủ, 1 phòng thờ, 1 WC chung, khu giặt – phơi sau. Ban công trước rộng 1,2–1,5m tạo điểm nhấn mặt tiền.
Phương án B – 4 phòng ngủ
Tầng 1: Khách liên thông bếp – ăn; 1 phòng ngủ; 1 WC; góc làm việc nhỏ.
Tầng 2: 3 phòng ngủ, có thể chia 1 WC chung + 1 WC riêng phòng master. Bản vẽ nhà 2 tầng 7x10m tối ưu tủ âm tường để tăng diện tích hữu ích.
Lựa chọn phong cách phù hợp diện tích 7x10m
Hiện đại – tối giản: Ít chi tiết, chú trọng bề mặt phẳng, đường thẳng. Bản vẽ thiết kế nhà 2 tầng 7x10m phong cách này bền mốt và dễ thi công.
Tân cổ điển tiết chế: Mảng phào nhẹ, tỷ lệ cửa – cột hợp lý. Mặt tiền trang nhã, không rườm rà.
Mái bằng đương đại: Khối hộp xen kẽ logia, tạo bóng đổ. Mẫu thiết kế nhà 7x10m dạng này khai thác sân thượng hiệu quả.
Mái Thái: Vẻ thân thiện, phù hợp khí hậu mưa nắng. Dốc mái 25–35° giúp thoát nước nhanh, mát trần.
Tối ưu kỹ thuật để thi công “đúng như phối cảnh”
Kết cấu: Chọn nhịp cột hợp lý để không gian mở. Bản vẽ thiết kế nhà 2 tầng 7x10m cần thống nhất cốt sàn sớm để tránh bậc thang lệch.
Điện – nước: Lập sơ đồ nguyên lý, vị trí ổ cắm – cấp thoát nước theo công năng thật. Dự phòng đường ống máy giặt, nước nóng.
Hoàn thiện: Chốt danh mục vật liệu trước khi bóc tách khối lượng. Bản vẽ nhà 2 tầng 7x10m kèm bảng mô tả vật liệu giúp kiểm soát chi phí và tiến độ.
Câu hỏi FAQ thường gặp
1. Xây 7x10m có đủ cho gia đình 5 người?
Có. Bản vẽ thiết kế nhà 2 tầng 7x10m bố trí 3–4 phòng ngủ, vẫn đảm bảo riêng tư và tiện nghi.
2. Chi phí dưới 1 tỷ có khả thi?
Vẫn có thể với cấu hình tối giản, vật liệu phổ thông và mái bằng. Dự toán tùy thời điểm – khu vực. Bản vẽ nhà 2 tầng 7x10m chi tiết giúp hạn chế phát sinh.
3. Nhà hẻm nhỏ có làm gara được không?
Tùy bề ngang và bán kính quay xe. Giải pháp thường là gara nửa chìm hoặc để xe trong sân trước; mẫu nhà 2 tầng 7x10m vẫn bố trí được chỗ đậu xe máy rộng rãi.
4. Sợ khác phối cảnh khi bàn giao?
Hãy yêu cầu mẫu vật liệu thật, mockup chi tiết và điều khoản nghiệm thu theo bản vẽ thiết kế nhà 2 tầng 7x10m.

Bản vẽ thiết kế nhà 2 tầng 7x10m là chìa khóa để bạn sở hữu căn nhà đẹp, hiện đại và tiết kiệm. Từ tổ chức mặt bằng, chọn phong cách đến kiểm soát chi phí, mọi thứ trở nên minh bạch khi có bản vẽ bài bản. Nếu bạn muốn một phương án “đo ni đóng giày”, hãy để chuyên gia đồng hành từ ý tưởng đến hoàn thiện.
Liên hệ dịch vụ thiết kế nhà phố để nhận bản vẽ thiết kế nhà 2 tầng 7x10m miễn phí bước đầu, tư vấn phong thủy – công năng và báo giá trọn gói rõ ràng. Chúng tôi cam kết phương án tối ưu ngân sách, thi công sát phối cảnh và bảo hành minh bạch.



